PARTS of Reading town centre could be redeveloped according to a new plan.
Thackeray Estates has submitted plans for the buildings at the junction of Queen Victoria Street and Friar Street.
Redevelopment would involve the demolition and part-demolition of buildings in Friar Street, the construction of an ‘apart-hotel’ and the creation of a new area in Queen Victoria Street.
These are divided into three projects codenamed Queen Victoria Street 1 (QVS1) , QVS1+ and QVS2.

146 Friar Street, a three-storey building home to Reading Food & Wine, would be removed, while a partial demolition of 145 Friar Street – the rear entrance to WH Smith – is proposed.
The application submitted to the council focuses on the external works for the project, which involves creating a new open courtyard lined with businesses.
The replacement buildings would set back from the street scene in between Friar Street and Broad Street, while the exterior of 147 Friar Street would be retained, with improved retail facilities on the ground floor.
The second application relates to Thackeray Estates plan for a 157-room ‘apart-hotel’, which combine self-sufficient living with hotel amenities such as restaurants and concierges.
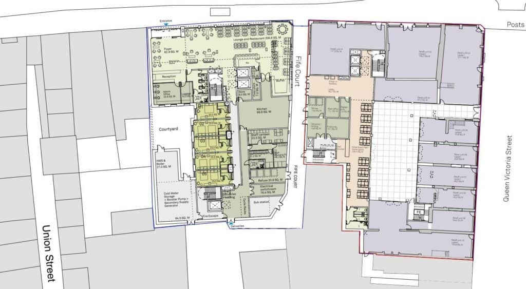
The block plan shows a hotel across two buildings. The building west of Fife Court would have a ground floor entry point with a foyer, reception, a lounge and a restaurant.

It is understood The Bugle pub, which was locally listed earlier this year, would be reconfigured to serve as the diner, with its frontage being retained.
The building east of Fife Court would also be a hotel, with ground floor check in stations and hotel space.
The portion east of Fife Court would contain a total of 10 retail units.
The plans have been submitted to Reading Borough Council, and can be viewed on its planning portal, references 221233 and 221232.



















