AN HISTORIC town centre pub in Reading is to be given a new lease of life.
The Coopers Arms in Market Place has been derelict since 2010, after landlords decided they could no longer make it work.
The site dates back to the 17th century, the frontage a Grade II listed structure.
At the time of the closure, it was intended to redevelop the site to create a five-storey retail site containing shops, a restaurant, a bar and hotel accommodation.
The then owners, Brook Henderson Estates, said the site could reopen as a pub if the right tenants came forward, but this did not happen and the building, along with the former Kik Sports store next door, have been empty for nearly 14 years. A branch of Britannia building society on the other side of The Coopers Arms closed after the Co-operative Bank took over the company in 2009.
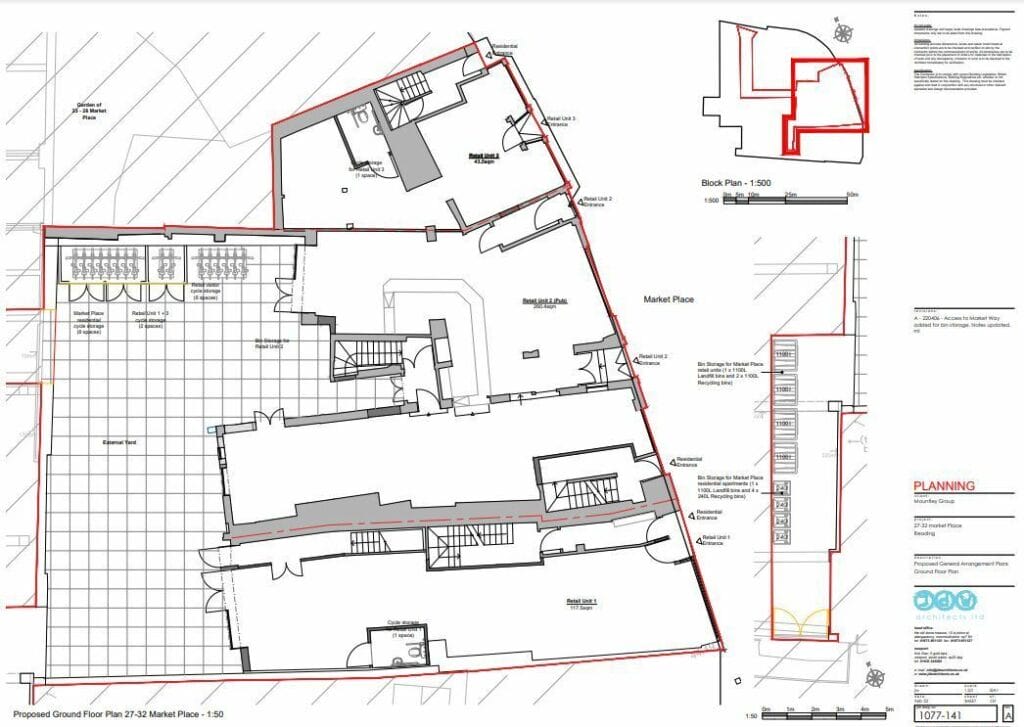
The site is in the shadow of St Laurence’s Church and close to the street food market space. The area is part of Reading’s trading heritage, dating back to the 12th century, and was home to the weekly market for hundreds of years.
Now, Watercrown Bracknell has won planning permission for a redevelopment of The Coopers Arms site which should see the pub reopen in a revived format, while the two retail units next door will also see a refurbishment that will bring them back to life.
The rest of the property will become eight apartments: a three-bed flat, three two-bed flats and four one-bed flats.

In 2021, Woodley-based pest control firm All Aspects posted a blog detailing the work they had undertaken to remove mess left by pigeons that had nested there.
The firm said: “Given a plentiful supply of food, drinking water and shelter, feral pigeons are probably the worst pest we deal with.”
They noted the building had not been secured properly and had been open to the elements in places.
Four floors of guano had to be cleared, covering rooms, corridors and stairwells, as well as floors, windowsills and exposed wooden beams.
It took four days for the company to complete the work, in preparation for the redevelopment ahead.
The applications can be seen on Reading Borough Council’s planning portal, searching for references 220545 and 220546.
To see the work undertaken by All Aspects, log on to: https://www.aaps.org.uk/whats-new/the-coopers-arms-in-reading/
Additional reporting: James Aldridge, Local democracy reporter




















